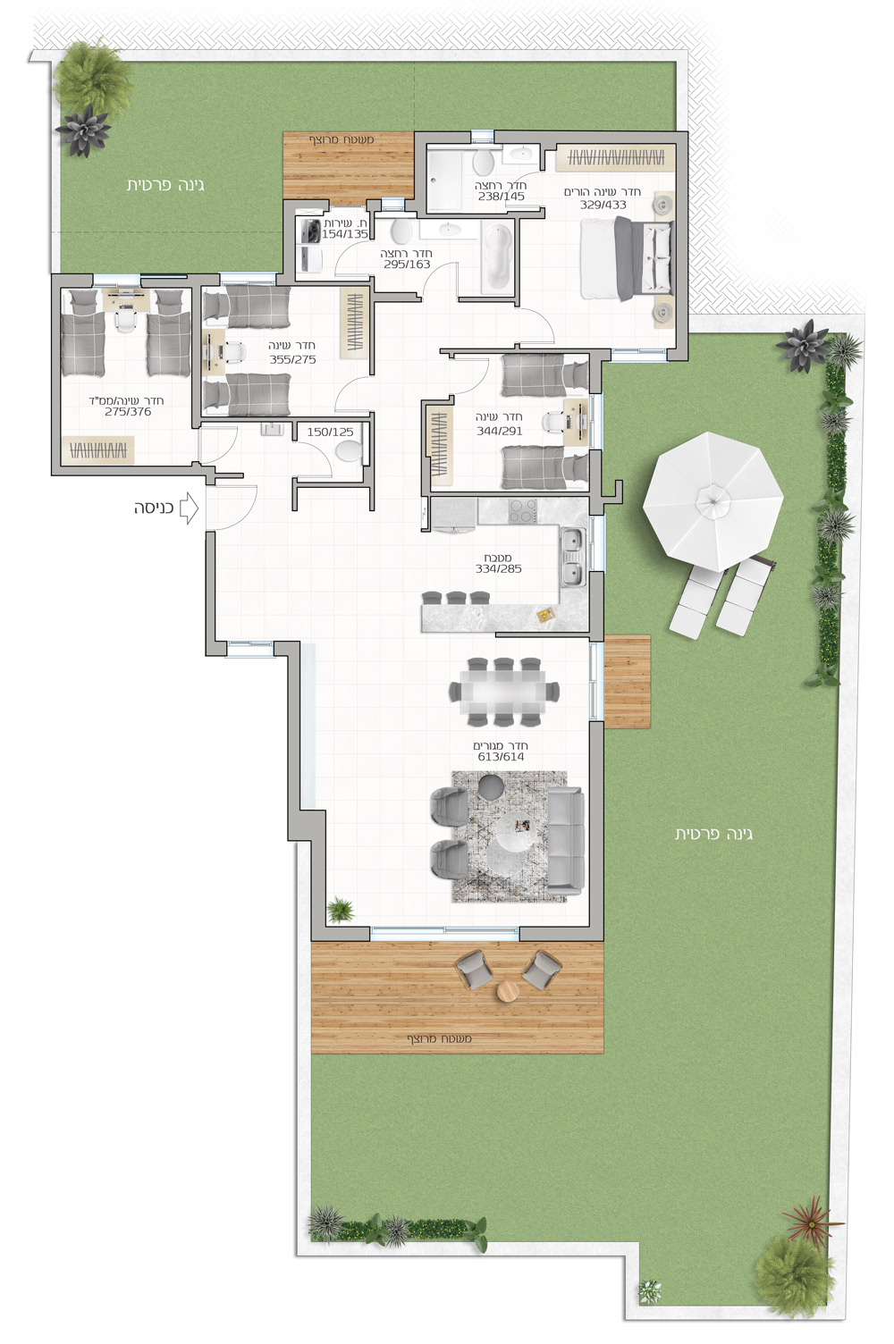
דגם עשה-אל

דגם עשה-אל
דירה מס' 347/1

קומת קרקע

דירת 5 חד׳ + גינה פרטית
סה״כ שטח דירה 148 מ״ר

גינה פרטית בהתאם לתכנית הפיתוח

דגם עשה-אל
דירה מס' 347/2

קומת קרקע

דירת 5 חד׳ + גינה פרטית
סה״כ שטח דירה: 139 מ״ר

גינה פרטית בהתאם לתכנית הפיתוח

דגם עשה-אל
דירה מס' 347/3

קומה +2

דירת 5 חד׳ + מרפסת + גינה פרטית
סה״כ שטח דירה: 132 מ״ר

גינה פרטית בהתאם לתכנית הפיתוח
+ אופציה למחסן בקומת החניה

דגם עשה-אל
דירה מס' 347/4

קומה +2

דירת 4.5 חד׳ + מרפסת + גינה פרטית
סה״כ שטח דירה: 123 מ״ר

גינה פרטית בהתאם לתכנית הפיתוח
+ אופציה למחסן בקומת החניה

דגם עשה-אל
דירה מס' 347/5
קומה +3

דירת 3 חד׳ + מרפסת + גינה פרטית
סה״כ שטח דירה: 109 מ״ר
גג עליון מוצמד: 82 מ״ר

גינה פרטית בהתאם לתכנית הפיתוח
+ אופציה למחסן בקומת החניה

דגם עשה-אל
דירה מס' 347/6

קומה +3

דירת 3 חד׳ + מרפסת + גינה פרטית
סה״כ שטח דירה: 103 מ״ר
גג עליון מוצמד: 85 מ״ר

גינה פרטית בהתאם לתכנית הפיתוח
+ אופציה למחסן בקומת החניה